Villa a schiera in vendita

Rivarolo Canavese, Via salvo d'acquisto - Pasquaro
€ 220.000
Prezzo aggiornato
5 locali 5 locali
160 Mq 160 Mq
2 bagni 2 bagni

Villa a schiera in vendita

Rivarolo Canavese, Via salvo d'acquisto - Pasquaro

Descrizione annuncio

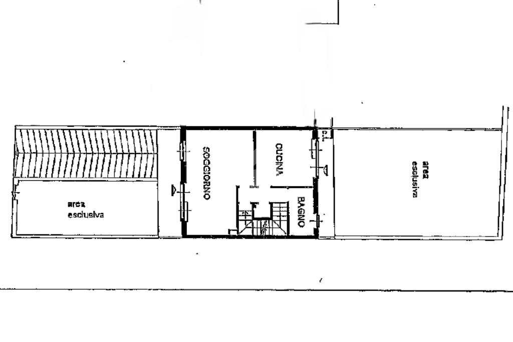
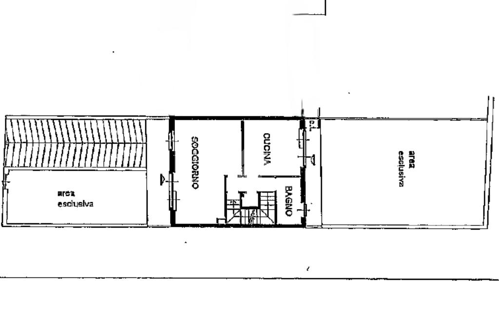
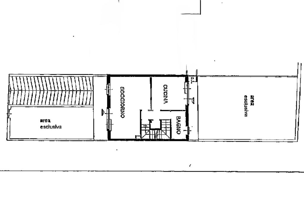
In zona residenziale proponiamo villetta a schiera libera su tre lati, edificata nel 2005.

Si sviluppa su più livelli, ci accoglie al piano terra l’ampio soggiorno, mentre la cucina abitabile si affaccia sullo sfogo esterno privato, ideale per momenti di relax all’aperto. Serve il piano un primo servizio igienico dotato di doccia.

La scala interna conduce al piano superiore, che comprende due camere da letto di generose dimensioni, dotate di balcone. Sullo stesso piano sono presenti una terza cameretta, e un secondo servizio igienico finestrato con vasca.

A completare la proposta immobiliare, il sottotetto mansardato, le cui dimensioni consentono di sfruttarlo secondo le proprie esigenze.

Perfezionano la proprietà il box auto, la cantina ed un locale deposito al piano interrato.

L’immobile rappresenta una soluzione funzionale per coloro che cercano comfort e tranquillità a pochi passi dai servizi del centro di Rivarolo.

Mostra tutto

Nelle vicinanze

Trasporto pubblico Trasporto pubblico
Rivarolo Canavese
Rivarolo Canavese
990 m
Feletto
Feletto
2,4 Km
Rivarolo (Eaton Livia)
Rivarolo (Eaton Livia)
160 m
Rivarolo (Pasquaro)
Rivarolo (Pasquaro)
250 m
Scuole Scuole
Scuole
1,0 Km
Scuola Media Statale "Guido Gozzano"
1,0 Km
Istituto di Educazione Superiore Aldo Moro
1,2 Km
Scuola Elementare
1,3 Km
Istituto SS. Annunziata
1,3 Km
Farmacia Farmacia
Farmacia
540 m
Farmacia Centrale
1,4 Km
Farmacia Garelli
1,5 Km
Parafarmacia Mazzocchi
1,6 Km
Farma Free
2,0 Km
Supermercati Supermercati
Acqua & Sapone
320 m
EuroSpin
380 m
Penny Market
500 m
Offertissima Market
1,1 Km
LD
1,2 Km
Negozi Negozi
Sandrono
1,0 Km
Futula
1,0 Km
Balagna
1,1 Km
X-Store
1,1 Km
Stefanel
1,1 Km
Bar Bar
Al Bistrot
1,1 Km
Bar La rosa bianca
2,6 Km
Havana Bar
2,9 Km
Il piccolo bar
2,9 Km
Ristoranti Ristoranti
Al Paradise
490 m
Happy Days
730 m
Il Nilo
940 m
Antichi Sapori
1,1 Km
Pizza OK
1,2 Km
Mostra tutto

Caratteristiche

Rif.:
61115745
Piano:
Su più livelli di 2
Totale piani:
2
Box:
1
Posti auto:
1
Balconi:
2
Mostra tutto
Prezzo Prezzo
€ 220.000
Rata mutuo Rata mutuo
€ 1.038 / mese
Spese annue Spese annue
€ 200
Proponi il tuo prezzoProponi il tuo prezzo
Immobile valutato con T·Valuta

Classe Energetica

D
D
D
D
D
D
D
D
D
EP globale non rinnovabile:
8172.00 kW h/m² anno
EP globale rinnovabile:
148.00 kW h/m² anno
EP invernale del fabbricato:
EP estiva del fabbricato:
Anno di costruzione:
2005
Riscaldamento:
Autonomo
Tipo impianto:
A radiatori
Tipo alimentazione:
Metano

Prezzo ridotto di €1 (4%%)

Ti interessa visionare l'immobile?

Fissa un appuntamento  Fissa un appuntamento

Richiedi informazioni

Clicca su Leggi per aprire l'informativa
* Questi campi sono obbligatori

Calcola il tuo mutuo

Semplice e senza impegno
Anticipo

( % )
Mutuo

( % )

pochi semplici passi

inserisci i tuoi dati
Questionario completato
Grazie per aver richiesto un appuntamento senza impegno con un nostro Consulente del Credito e Assicurativo.

Hai inserito correttamente tutti i dati necessari e a breve riceverai una e-mail con un link da convalidare per inviare i tuoi dati.
Affiliato
Immobili Rivarolo Snc
Corso Torino, 7 10086 Rivarolo Canavese (TO)

Il nostro staff


  • Alessandro Pietrarelli
    Collaboratore

  • Marco Polizzi
    Affiliato

  • Giuseppina Reale
    Affiliata

  • Joele Vona
    Collaboratore
Corso Torino, 7 10086 Rivarolo Canavese (TO)
Zona: Rivarolo Canavese-Valperga
Mostra su mappa
Orari: lunedi-venerdì 9:00-12:30/14:30-20:00 ; sabato 9:00-12:30/14:30-18:00
Affiliato
Immobili Rivarolo Snc
Corso Torino, 7 10086 Rivarolo Canavese (TO)

2025 Tecnocasa Franchising S.p.A. - P. IVA 08365160152 - Via Monte Bianco 60/A 20089 Rozzano (MI). Ogni agenzia ha un proprio titolare ed è autonoma. Privacy policy | Policy utilizzo | Cookie policy