Casa semindipendente in vendita

Rivarolo Canavese, Via del Molino - Bonaudi
€ 137.000
Prezzo aggiornato
5 locali 5 locali
155 Mq 155 Mq
2 bagni 2 bagni

Casa semindipendente in vendita

Rivarolo Canavese, Via del Molino - Bonaudi

Descrizione annuncio

In frazione Bonaudi a pochi minuti dal centro del paese e dalle principali vie di comunicazione casa semi – indipendente ristrutturata nel 2010.

L'abitazione si sviluppa su più livelli, con spazi interni ampi e ben distribuiti, pensati per offrire comfort e privacy.
Le stanze della casa sono collegate da scale interne che offrono un’ottima separazione tra la zona notte, la zona giorno e gli eventuali spazi da dedicare al lavoro o altri hobby.

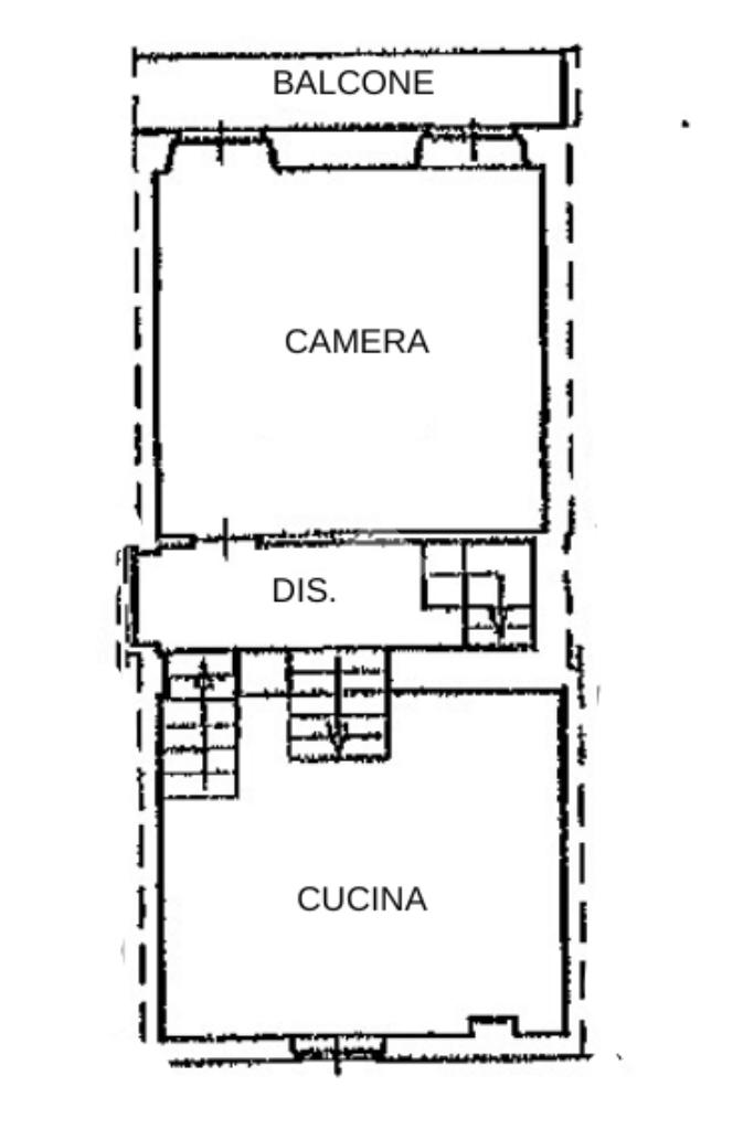
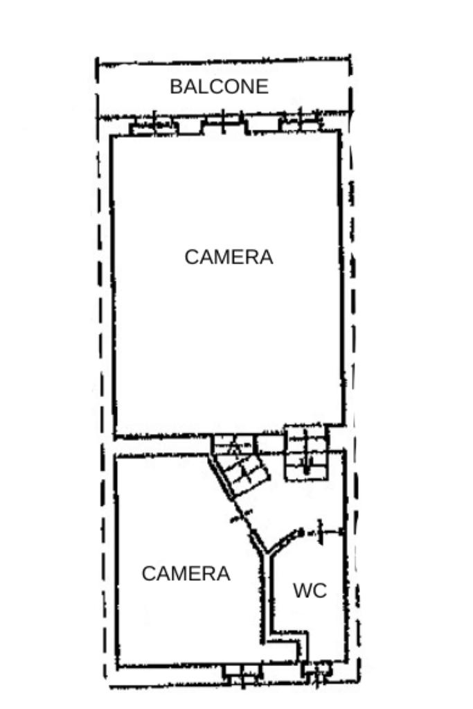
Al piano terra l'ingresso è sul soggiorno reso luminoso grazie alle portefinestre che affacciano direttamente sul cortile ed è impreziosito dai soffitti con mattoni a vista e dal camino a legna collegato ai termosifoni.
La cucina è abitabile e, con la sua buona metratura, risulta ampia e ariosa. Il piano è servito anche di un primo bagno finestrato con la doccia e un vano adibito a cantina.

La scala conduce ai due piani superiori dove la zona notte si compone di tre camere da letto. Al primo piano, una camera matrimoniale dotata di portafinestra che affaccia sul balcone, la seconda cameretta è singola e rivestita di perline. Un secondo bagno con sanitari a filo muro serve il piano.
La terza camera da letto, al piano superiore, è luminosa grazie alle due finestre e alla portafinestra che apre sul balcone.

Al piano interrato troviamo una splendida tavernetta, caratterizzata dal soffitto a volta in mattoni che conferisce una calda atmosfera rustica.

Entrambi i servizi igienici sono stati completamente ristrutturati nel 2024.

Prospicente l'ingresso dell'abitazione un cortile recintato e dotato di pavimentazione di autobloccanti funge da piacevole sfogo esterno; ideale per consumare pasti all'aria aperta sarà facilmente sfruttabile.
Di fronte alla casa completano la proprietà una travata disposta su due livelli, composta da due posti auto coperti ed un locale ad uso deposito; ed il giardino privato di circa 1.300 mq.

Mostra tutto

Nelle vicinanze

Trasporto pubblico Trasporto pubblico
Feletto
Feletto
1,2 Km
Rivarolo Canavese
Rivarolo Canavese
2,5 Km
Feletto (garage Sada)
Feletto (garage Sada)
1,0 Km
Rivarolo (Argentera bv. Baudini)
Rivarolo (Argentera bv. Baudini)
1,1 Km
Scuole Scuole
Scuola Elementare Gianni Rodari
1,6 Km
Scuole
2,6 Km
Scuola Media Statale "Guido Gozzano"
2,6 Km
Istituto di Educazione Superiore Aldo Moro
2,8 Km
Scuola Elementare
2,8 Km
Farmacia Farmacia
Farmacia
1,4 Km
Farmacia Antonini
1,5 Km
Farmacia Centrale
2,9 Km
Farmacia Garelli
3,0 Km
Supermercati Supermercati
Lidl
1,0 Km
Natura madre
1,0 Km
Europrezzi
1,1 Km
TiGoTà
1,1 Km
LD
1,1 Km
Negozi Negozi
Negozi
1,3 Km
Larese
1,3 Km
Sandrono
2,5 Km
Futula
2,5 Km
X-Store
2,6 Km
Bar Bar
Al Bistrot
2,6 Km
Ristoranti Ristoranti
La terrazza
1,0 Km
Locanda dei Templari
1,4 Km
Al Paradise
1,5 Km
Pizzeria Antica Argentera
1,6 Km
Happy Days
2,3 Km
Mostra tutto

Caratteristiche

Rif.:
61147868
Piano:
Su più livelli di 3
Totale piani:
3
Posti auto:
1
Balconi:
2
Camere da letto:
3
Mostra tutto
Prezzo Prezzo
€ 137.000
Rata mutuo Rata mutuo
€ 647 / mese
Spese annue Spese annue
€ 0
Proponi il tuo prezzoProponi il tuo prezzo

Classe Energetica

F
F
F
F
F
F
F
F
F
EP globale non rinnovabile:
171.20 kW h/m² anno
EP globale rinnovabile:
0.84 kW h/m² anno
EP invernale del fabbricato:
EP estiva del fabbricato:
Anno di costruzione:
1900
Riscaldamento:
Autonomo
Tipo impianto:
A radiatori
Tipo alimentazione:
Altro

Prezzo ridotto di €1 (13%%)

Ti interessa visionare l'immobile?

Fissa un appuntamento  Fissa un appuntamento

Richiedi informazioni

Clicca su Leggi per aprire l'informativa
* Questi campi sono obbligatori

Calcola il tuo mutuo

Semplice e senza impegno
Anticipo

( % )
Mutuo

( % )

pochi semplici passi

inserisci i tuoi dati
Questionario completato
Grazie per aver richiesto un appuntamento senza impegno con un nostro Consulente del Credito e Assicurativo.

Hai inserito correttamente tutti i dati necessari e a breve riceverai una e-mail con un link da convalidare per inviare i tuoi dati.
Affiliato
Immobili Rivarolo Snc
Corso Torino, 7 10086 Rivarolo Canavese (TO)

Il nostro staff


  • Alessandro Pietrarelli
    Collaboratore

  • Marco Polizzi
    Affiliato

  • Giuseppina Reale
    Affiliata

  • Joele Vona
    Collaboratore
Corso Torino, 7 10086 Rivarolo Canavese (TO)
Zona: Rivarolo Canavese-Valperga
Mostra su mappa
Orari: lunedi-venerdì 9:00-12:30/14:30-20:00 ; sabato 9:00-12:30/14:30-18:00
Affiliato
Immobili Rivarolo Snc
Corso Torino, 7 10086 Rivarolo Canavese (TO)

2025 Tecnocasa Franchising S.p.A. - P. IVA 08365160152 - Via Monte Bianco 60/A 20089 Rozzano (MI). Ogni agenzia ha un proprio titolare ed è autonoma. Privacy policy | Policy utilizzo | Cookie policy