Casa indipendente in vendita

Rivarolo Canavese, Canton clare
€ 49.000
4 locali 4 locali
100 Mq 100 Mq
1 bagno 1 bagno

Casa indipendente in vendita

Rivarolo Canavese, Canton clare

Descrizione annuncio

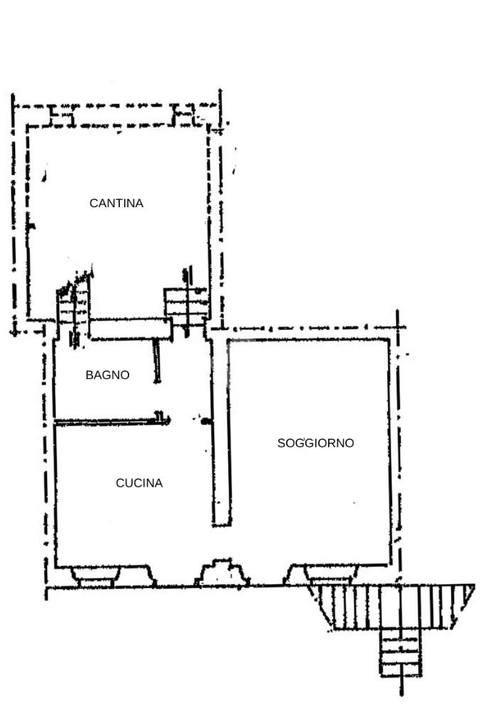
Casa semi - indipendente sviluppata su due livelli, situata in una zona tranquilla.
L'abitazione si distingue per la sua praticità e per la disposizione razionale degli spazi, ideali per una famiglia che desidera vivere in serenità, con la possibilità di personalizzare gli ambienti a proprio piacimento.

La casa è composta da una luminosa zona giorno al piano terra con soggiorno e cucina abitabile, e dalla zona notte al piano superiore disposta in tre camere da letto. Gli spazi sono ben distribuiti, per garantire il massimo comfort.

All’esterno, di pertinenza alla soluzione abitativa: un garage con annessa porzione di terreno privato e recintato che offre spazio aggiuntivo per attività all’aria aperta, come giardinaggio o area giochi.
Adiacente alla proprietà una tettoia a nudo tetto utilizzabile come deposito con annessa porzione di terreno recintato.

Questa proposta immobiliare è perfetta per chi cerca una soluzione che abbia indipendenza, con ampi spazi esterni e la possibilità di personalizzare ulteriormente gli ambienti a seconda delle proprie esigenze.

Mostra tutto

Nelle vicinanze

Trasporto pubblico Trasporto pubblico
Rivarolo (Argentera centro)
Rivarolo (Argentera centro)
1,1 Km
Rivarolo (Argentera Chiesa)
Rivarolo (Argentera Chiesa)
1,1 Km
Ristoranti Ristoranti
Pizzeria Antica Argentera
1,0 Km
Mostra tutto

Caratteristiche

Rif.:
61147687
Piano:
Su più livelli di 2
Totale piani:
2
Box:
1
Balconi:
1
Camere da letto:
3
Mostra tutto
Prezzo Prezzo
€ 49.000
Rata mutuo Rata mutuo
€ 231 / mese
Spese annue Spese annue
€ 0
Proponi il tuo prezzoProponi il tuo prezzo

Classe Energetica

G
G
G
G
G
G
G
G
G
EP globale non rinnovabile:
253.92 kW h/m² anno
EP globale rinnovabile:
11.14 kW h/m² anno
EP invernale del fabbricato:
EP estiva del fabbricato:
Anno di costruzione:
1900
Riscaldamento:
Autonomo
Tipo impianto:
A stufa
Tipo alimentazione:
Altro

Ti interessa visionare l'immobile?

Fissa un appuntamento  Fissa un appuntamento

Richiedi informazioni

Clicca su Leggi per aprire l'informativa
* Questi campi sono obbligatori

Calcola il tuo mutuo

Semplice e senza impegno
Anticipo

( % )
Mutuo

( % )

pochi semplici passi

inserisci i tuoi dati
Questionario completato
Grazie per aver richiesto un appuntamento senza impegno con un nostro Consulente del Credito e Assicurativo.

Hai inserito correttamente tutti i dati necessari e a breve riceverai una e-mail con un link da convalidare per inviare i tuoi dati.
Affiliato
Immobili Rivarolo Snc
Corso Torino, 7 10086 Rivarolo Canavese (TO)

Il nostro staff


  • Alessandro Pietrarelli
    Collaboratore

  • Marco Polizzi
    Affiliato

  • Giuseppina Reale
    Affiliata

  • Joele Vona
    Collaboratore
Corso Torino, 7 10086 Rivarolo Canavese (TO)
Zona: Rivarolo Canavese-Valperga
Mostra su mappa
Orari: lunedi-venerdì 9:00-12:30/14:30-20:00 ; sabato 9:00-12:30/14:30-18:00
Affiliato
Immobili Rivarolo Snc
Corso Torino, 7 10086 Rivarolo Canavese (TO)

2026 Tecnocasa Franchising S.p.A. - P. IVA 08365160152 - Via Monte Bianco 60/A 20089 Rozzano (MI). Ogni agenzia ha un proprio titolare ed è autonoma. Privacy policy | Policy utilizzo | Cookie policy