Trilocale in vendita

Rivarolo Canavese, Via Trieste
€ 140.000
3 locali 3 locali
90 Mq 90 Mq
1 bagno 1 bagno

Trilocale in vendita

Rivarolo Canavese, Via Trieste

Descrizione annuncio

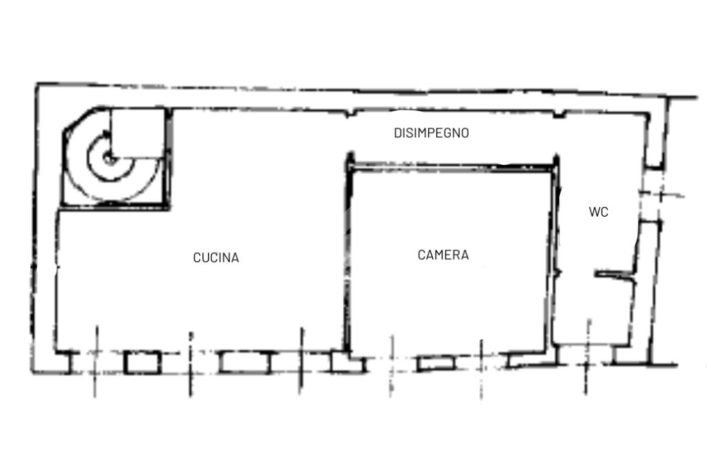
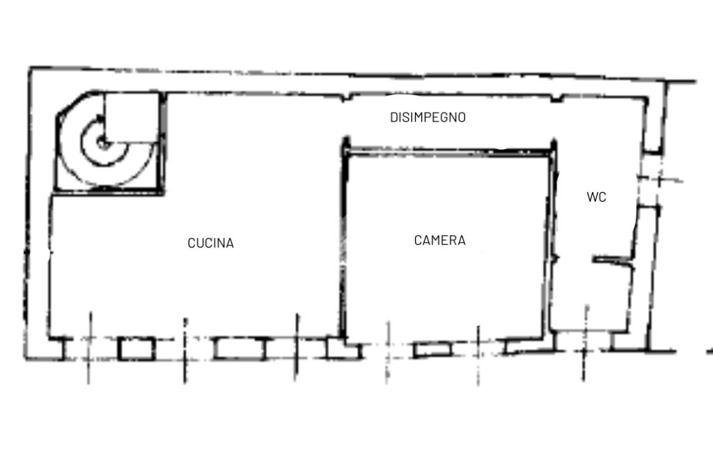
Nel cuore del centro storico del paese soluzione abitativa situata al primo piano, accessibile tramite scala interna, e si compone di ingresso living su soggiorno con cucina a vista che rende l’ambiente pratico e ospitale, un corridoio che ben collega gli ambienti conduce alla camera da letto matrimoniale, luminosa e ben arieggiata.

Completano il piano un ripostiglio e il bagno dotato di doccia con accesso su un balconcino che affaccia nell’interno cortile.
Tramite comoda scala interna si accede al piano superiore dove la seconda camera da letto matrimoniale spaziosa e ben arieggiata completa la parte abitativa. La stanza è certamente caratterizzata dal soffitto in legno, che dona calore e carattere all’intero ambiente.

Il Riscaldamento è autonomo a metano mediante radiatori, all’interno del cortile comune il posto auto ad uso esclusivo completa la proprietà.

Punto di forza è sicuramente la posizione centrale, comoda al raggiungimento dei servizi offerti dalla cittadina.

Mostra tutto

Nelle vicinanze

Trasporto pubblico Trasporto pubblico
Rivarolo Canavese
Rivarolo Canavese
580 m
Favria-Oglianico
Favria-Oglianico
2,7 Km
Rivarolo (C.so Italia)
Rivarolo (C.so Italia)
70 m
Rivarolo (v. Ivrea/c.so Meaglia)
Rivarolo (v. Ivrea/c.so Meaglia)
220 m
Scuole Scuole
Immacolata Concezione
50 m
Istituto SS. Annunziata
340 m
Scuola Elementare
390 m
Istituto di Educazione Superiore Aldo Moro
410 m
Scuola Media Statale "Guido Gozzano"
780 m
Farmacia Farmacia
Parafarmacia Mazzocchi
90 m
Farmacia Garelli
90 m
Farmacia Centrale
180 m
Farma Free
600 m
Farmacia
1,7 Km
Supermercati Supermercati
Supermercato Pam
220 m
Offertissima Market
500 m
Il Gigante
620 m
IN's
680 m
Acqua & Sapone
1,5 Km
Negozi Negozi
Piccat
10 m
JPoint
20 m
Califfo Market
60 m
Benetton
100 m
Negozi
100 m
Bar Bar
Al Bistrot
450 m
Caffetteria Pasticceria Gianni
2,2 Km
Bar La rosa bianca
2,3 Km
Antica società operaia
2,3 Km
Palabar
2,5 Km
Ristoranti Ristoranti
La Mandragola pizza da asporto
60 m
Antica Locanda dell'Orco
170 m
El Cit
210 m
Squisipizza
230 m
3K
230 m
Mostra tutto

Caratteristiche

Rif.:
61046956
Piano:
1 di 3 (ultimo Piano)
Posti auto:
1
Balconi:
1
Camere da letto:
2
Arredamento:
Assente
Mostra tutto
Prezzo Prezzo
€ 140.000
Rata mutuo Rata mutuo
€ 661 / mese
Spese annue Spese annue
€ 0
Proponi il tuo prezzoProponi il tuo prezzo

Classe Energetica

F
F
F
F
F
F
F
F
F
EP globale non rinnovabile:
11989.00 kW h/m² anno
EP globale rinnovabile:
184.00 kW h/m² anno
EP invernale del fabbricato:
EP estiva del fabbricato:
Anno di costruzione:
1900
Riscaldamento:
Autonomo
Tipo impianto:
A radiatori
Tipo alimentazione:
Metano

Ti interessa visionare l'immobile?

Fissa un appuntamento  Fissa un appuntamento

Richiedi informazioni

Clicca su Leggi per aprire l'informativa
* Questi campi sono obbligatori

Calcola il tuo mutuo

Semplice e senza impegno
Anticipo

( % )
Mutuo

( % )

pochi semplici passi

inserisci i tuoi dati
Questionario completato
Grazie per aver richiesto un appuntamento senza impegno con un nostro Consulente del Credito e Assicurativo.

Hai inserito correttamente tutti i dati necessari e a breve riceverai una e-mail con un link da convalidare per inviare i tuoi dati.
Affiliato
Immobili Rivarolo Snc
Corso Torino, 7 10086 Rivarolo Canavese (TO)

Il nostro staff


  • Alessandro Pietrarelli
    Collaboratore

  • Marco Polizzi
    Affiliato

  • Giuseppina Reale
    Affiliata

  • Joele Vona
    Collaboratore
Corso Torino, 7 10086 Rivarolo Canavese (TO)
Zona: Rivarolo Canavese-Valperga
Mostra su mappa
Orari: lunedi-venerdì 9:00-12:30/14:30-20:00 ; sabato 9:00-12:30/14:30-18:00
Affiliato
Immobili Rivarolo Snc
Corso Torino, 7 10086 Rivarolo Canavese (TO)

2025 Tecnocasa Franchising S.p.A. - P. IVA 08365160152 - Via Monte Bianco 60/A 20089 Rozzano (MI). Ogni agenzia ha un proprio titolare ed è autonoma. Privacy policy | Policy utilizzo | Cookie policy