Trilocale in vendita

Rivarolo Canavese, Via favria
€ 165.000
3 locali 3 locali
90 Mq 90 Mq
1 bagno 1 bagno

Trilocale in vendita

Rivarolo Canavese, Via favria

Descrizione annuncio

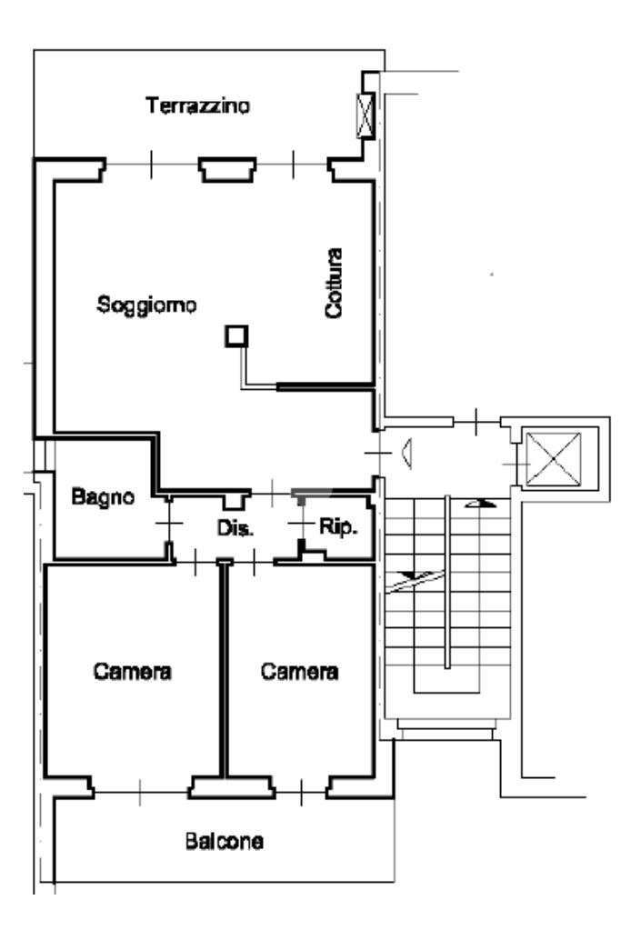
In complesso residenziale circondato dal verde, appartamento ristrutturato dotato di riscaldamento autonomo, box auto e cantina.

La soluzione è ubicata al secondo piano ed è servita da ascensore.

L'ingresso su disimpegno conduce al luminoso soggiorno e alla cucina a vista entrambi serviti dal terrazzino.
La zona notte si compone di due camere da letto, entrambe a pianta regolare, una con accesso al balcone e l'altra con finestra. Il bagno con doccia ed il ripostiglio completano il piano abitativo.

Al piano seminterrato completano la proprietà il box auto e la cantina.

La soluzione è stata riammodernata di recente, gli infissi esterni sono in pvc con vetri doppi e sono dotati di zanzariere, gli infissi interni sono stati sostituiti, sono stati montati i climatizzatori, il bagno è stato rifatto, hanno sostituito la caldaia e l'impianto elettrico è stato rivisto. Il terrazzo è dotato di tenda da sole.

Per fissare un appuntamento o per eventuali informazioni chiama senza nessun impegno.

Mostra tutto

Nelle vicinanze

Trasporto pubblico Trasporto pubblico
Rivarolo Canavese
Rivarolo Canavese
1,1 Km
Favria-Oglianico
Favria-Oglianico
1,9 Km
Rivarolo (Perardi)
Rivarolo (Perardi)
130 m
Rivarolo (Case Fanfani)
Rivarolo (Case Fanfani)
240 m
Scuole Scuole
Scuole
540 m
Scuola Media Statale "Guido Gozzano"
540 m
Istituto SS. Annunziata
680 m
Scuola Elementare
680 m
Istituto di Educazione Superiore Aldo Moro
710 m
Farmacia Farmacia
Farmacia Centrale
850 m
Farma Free
930 m
Farmacia Garelli
980 m
Parafarmacia Mazzocchi
1,0 Km
Farmacia
1,6 Km
Supermercati Supermercati
IN's
630 m
Offertissima Market
800 m
Supermercato Pam
830 m
Il Gigante
910 m
Acqua & Sapone
1,7 Km
Negozi Negozi
Atzeni
120 m
Il Cucciolo
750 m
Dal cesto del grano
760 m
La Pecora Nera
770 m
W
770 m
Bar Bar
Al Bistrot
940 m
Bar La rosa bianca
1,4 Km
Il piccolo bar
1,8 Km
Ristoranti Ristoranti
Crazy Pizza
130 m
Xing Du
210 m
Antichi Sapori
540 m
Il Granchio
560 m
Kombu
600 m
Mostra tutto

Caratteristiche

Rif.:
60987114
Piano:
2 di 4 con ascensore (Piano alto)
Box:
1
Balconi:
1
Terrazzi:
1
Camere da letto:
2
Mostra tutto
Prezzo Prezzo
€ 165.000
Rata mutuo Rata mutuo
€ 779 / mese
Spese annue Spese annue
€ 900
Proponi il tuo prezzoProponi il tuo prezzo

Classe Energetica

E
E
E
E
E
E
E
E
E
EP globale non rinnovabile:
123.96 kW h/m² anno
EP globale rinnovabile:
4.48 kW h/m² anno
EP invernale del fabbricato:
EP estiva del fabbricato:
Anno di costruzione:
1980
Riscaldamento:
Autonomo
Tipo impianto:
A radiatori
Tipo alimentazione:
Metano

Ti interessa visionare l'immobile?

Fissa un appuntamento  Fissa un appuntamento

Richiedi informazioni

Clicca su Leggi per aprire l'informativa
* Questi campi sono obbligatori

Calcola il tuo mutuo

Semplice e senza impegno
Anticipo

( % )
Mutuo

( % )

pochi semplici passi

inserisci i tuoi dati
Questionario completato
Grazie per aver richiesto un appuntamento senza impegno con un nostro Consulente del Credito e Assicurativo.

Hai inserito correttamente tutti i dati necessari e a breve riceverai una e-mail con un link da convalidare per inviare i tuoi dati.
Affiliato
Immobili Rivarolo Snc
Corso Torino, 7 10086 Rivarolo Canavese (TO)

Il nostro staff


  • Alessandro Pietrarelli
    Collaboratore

  • Marco Polizzi
    Affiliato

  • Giuseppina Reale
    Affiliata

  • Joele Vona
    Collaboratore
Corso Torino, 7 10086 Rivarolo Canavese (TO)
Zona: Rivarolo Canavese-Valperga
Mostra su mappa
Orari: lunedi-venerdì 9:00-12:30/14:30-20:00 ; sabato 9:00-12:30/14:30-18:00
Affiliato
Immobili Rivarolo Snc
Corso Torino, 7 10086 Rivarolo Canavese (TO)

2025 Tecnocasa Franchising S.p.A. - P. IVA 08365160152 - Via Monte Bianco 60/A 20089 Rozzano (MI). Ogni agenzia ha un proprio titolare ed è autonoma. Privacy policy | Policy utilizzo | Cookie policy